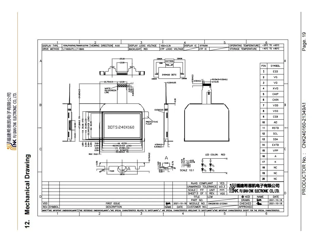
| ARTICLE | Spécification | 
| Taille du module | 55.58 (w) x47.18 (h) x5.4 (t) mm | 
| Afficher la zone de vue (objectif) | 48,59 (w) x33.39 (h) mm | 
| Afficher la zone de vue (LCD) | 
				49.58 (w) x34.38 (h) mm | 
| Mode d'affichage | 
				FSTN Transflectif positif | 
			
| Afficher IC | 
				6 heures | 
			
| IC de conducteur | 
				ST75256 (ou compatible) | 
			
| Rétro-éclairage | 
				LED / ROUGE | 
			
| Poids | TBD | 
			


 
